Projekte

Düsseldorf Goldeck.

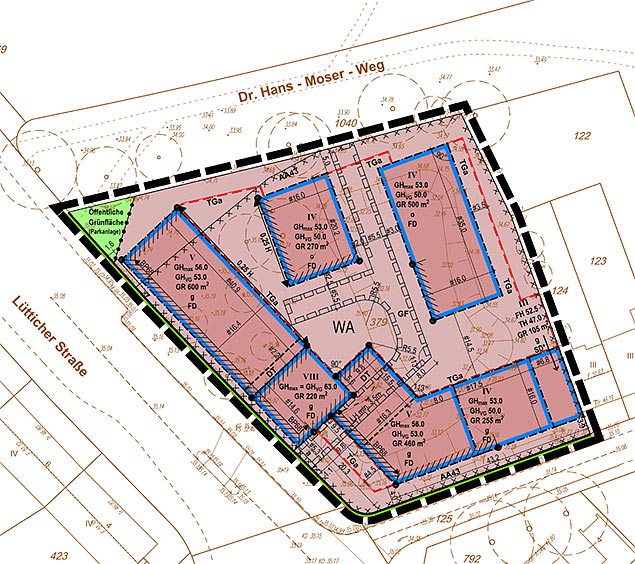
Bebauungsplan Düsseldorf Goldeck

Das an der Ecke Lütticher Straße / Wettinerstraße liegende ehemalige Hallenbad wurde 2015 wegen Baufälligkeit geschlossen. Ein Ersatzneubau wurde an anderer Stelle geschaffen, auf dem ca. 0,55 ha großen Gelände ist daher die Entwicklung eines innerstädtischen Wohnquartiers vorgesehen. Für die Entwicklung der Fläche wurde ein Hochbauwettbewerb durchgeführt, der Siegerentwurf von Konrath und Wennemar Architekten diente als Grundlage für den von uns erarbeiteten Bebauungsplan. Er sieht eine geschlossene Blockrandbebauung und ergänzende Wohngebäude im Innenhof mit insgesamt ca. 110 Wohneinheiten unterschiedlicher Größe sowie eine Gastronomieeinheit vor, die um einen gemeinschaftlich nutzbaren grünen Innenhof liegen.

Die Aufstellung des Bebauungsplans erfolgte im beschleunigten Verfahren nach § 13 a BauGB.


Interesse an einer Zusammenarbeit?


Sie haben Fragen oder möchten ein Erstgespräch vereinbaren?
Melden Sie sich gerne telefonisch unter + (49) 241 56817-0 oder schreiben eine Mail an: info@bki-aachen.de.

K O N T A K T A U f N E H M E N